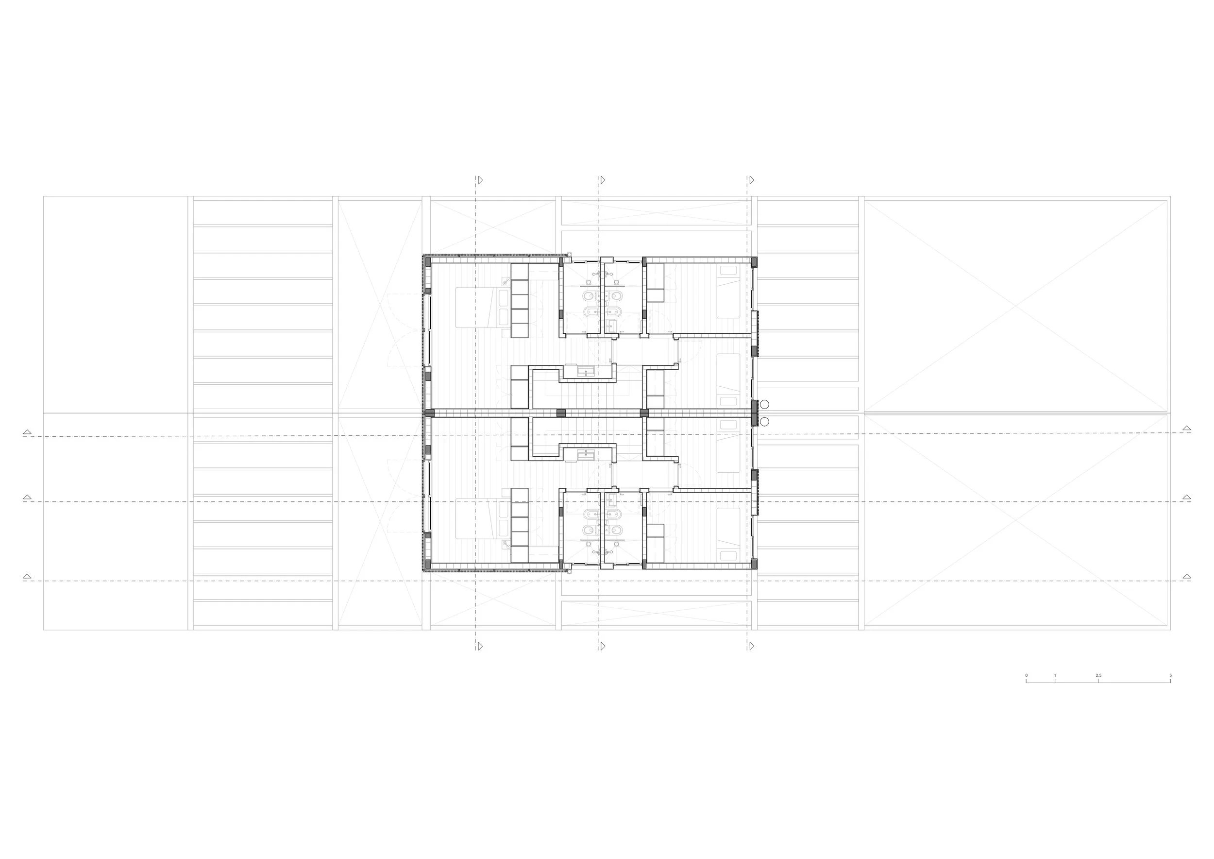
La propuesta se materializa en tres volúmenes que parecen flotar sobre el terreno, buscando establecer una relación directa con el mar y el horizonte. La planta baja concentra los espacios comunes: estar, comedor y cocina se disponen como un ámbito continuo y permeable, en relación directa con los espacios exteriores.

En los niveles superiores se ubican los espacios más íntimos, configurando un ámbito de mayor resguardo y privacidad, mientras que la disposición volumétrica refuerza la apertura hacia el paisaje costero y la presencia constante del mar como telón de fondo.

El proyecto es un conjunto de tres viviendas ubicado frente a la rambla de Ciudad de la Costa. Se organiza a partir de una lógica clara, donde los usos públicos y privados se separan verticalmente, ordenando la vida cotidiana.

Podgorica High School

*Ubicación: Ciudad de la Costa

*Estado: En construcción

*Construcción: JECuadro Ltda.

*Imagenes: Estudio Pila

Casas San Rafael

El proyecto es un conjunto de tres viviendas ubicado frente a la rambla de Ciudad de la Costa. Se organiza a partir de una lógica clara, donde los usos públicos y privados se separan verticalmente, ordenando la vida cotidiana.

*Ubicación: Ciudad de la Costa

*Estado: En construcción

*Construcción: JECuadro Ltda.

*Imagenes: Estudio Pila


La propuesta se materializa en tres volúmenes que parecen flotar sobre el terreno, buscando establecer una relación directa con el mar y el horizonte. La planta baja concentra los espacios comunes: estar, comedor y cocina se disponen como un ámbito continuo y permeable, en relación directa con los espacios exteriores.

En los niveles superiores se ubican los espacios más íntimos, configurando un ámbito de mayor resguardo y privacidad, mientras que la disposición volumétrica refuerza la apertura hacia el paisaje costero y la presencia constante del mar como telón de fondo.