Una península rocosa se adentra en el mar, configurando uno de los paisajes más reconocibles de la costa uruguaya.

En su ladera Este el territorio se abre al océano Atlántico en largas panorámicas hacia la bahía de Punta del Este y la isla Gorriti. Este lugar no es un simple paisaje de contemplación, se trata de un ecosistema en tensión: roca, vegetación y ocupaciones humanas se superponen.

Construir una casa aquí significa dialogar con un entorno de gran potencia, donde paisaje, topografía y horizonte no son fondo, sino protagonistas.

Casa Las Grutas

Infra estructuras Posibles

¿Qué es una infraestructura?¿Cómo podemos operar en ellas y/o a través de ellas?¿Qué oportunidades encontramos en la actualidad?

Estas son algunas de las preguntas que han guiado el siguiente ensayo de proyecto, el cual busca abordar el tema de las infraestructuras, entendidas como ese conjunto de elementos físicos y organizativos que proporcionan la base necesaria para el funciona miento y desarrollo de una sociedad. Se centra especial mente en las infraestructuras duras, y posiblemente problemáticas en cuanto a su hipotética integración a la ciudad, como es el caso del tratamiento de residuos. El proyecto busca posibles sinergias y estrategias que permitan la integración y asimilación de estos dispositi vos a la trama urbana. Se propone aprovechar la potencia de la inversión para generar programas públicos que se alimenten de la infraestructura.

Estos nuevos monstruos, híbridos bizarros, deben encontrar puntos en el territorio capaces de albergarlos e integrarlos, ciudades en construcción, laboratorios de prueba para estos nuevos gigantes socio-industriales.

ENSAMBLAJE DE MONSTRUOS

“El monstruo no es un fin en sí mismo, sino un momento de negociación en el proceso entre lo que hay que saber y lo que hay que saber olvidar en arquitectura. (...) Es el estado del proceso en el que se hace necesario crear coherencia de la mera acumulación de datos objetivos, dispares entre sí, sabiendo que las renuncias son tan importantes como las elecciones y, por tanto, que el núcleo del trabajo consiste en gestionar la “imperfección” de forma productiva. El ensamblaje del monstruo puede ser físico (figurativo) y/o matemático (paramétrico); debe cuidarse de intentar suavizar a priori las lógicas contradictorias que informan y dan consistencia al sistema. Para una adecuada construcción del monstruo es imprescindible no borrar la incoherencia de las distintas organizaciones materiales y espaciales en conflicto, sino dejar el registro del campo de batalla. (...)

Cuando el monstruo produce rechazo, el trabajo puede canalizarse a aliviar parcialmente las contradicciones entre lógicas mediando subjetivamente para identificar las predominantes. (...) Todo el proceso se basa así en una idea cuya raíz pintoresca es incuestionable: para alcanzar una nueva idea de belleza es necesario atravesar ciertas dosis de fealdad.”

Ensayos sobre Termodinámica, Arquitectura y Belleza. Iñaki Ábalos.

EL RESIDUO COMO RECURSO

El paradigma económico actual se define por un modelo lineal de producción y consumo, desde la extracción de materias primas hasta el descarte, generando ineficiencias y considerables residuos. Este fenómeno está vinculado al crecimiento demográfico, urbanización y desarrollo económico, resultando en un aumento continuo de residuos a nivel global.

En respuesta, la economía circular propone revisar este modelo, optimizando el uso de recursos para reducir residuos y mejorar la eficiencia en las cadenas de valor, disminuyendo los impactos ambientales. Simultáneamente, la bioeconomía emerge como un enfoque sostenible, basado en la producción directa y transformación de recursos biológicos, destacando su aplicación en alimentos, fibras y productos biobasados.

Ambas perspectivas buscan la transición de modelos dependientes de recursos fósiles a eficientes aprovechamientos de recursos renovables y tecnologías avanzadas, minimizando residuos e integrando subproductos en sistemas productivos, contribuyendo a la sostenibilidad ambiental.

La propuesta se alinea con dicho cambio, identificando en los residuos, particularmente los orgánicos, una oportunidad de acción. Estos, a menudo descuidados, son una fuente significativa de gases de efecto invernadero. Este material ofrece una oportunidad para experimentar con la producción de energía, combustibles y otros subproductos mediante la aplicación de tecnologías.

RESIDUOS EN URUGUAY

En nuestro país, se ha venido trabajando durante varios años en la gestión integral de residuos. En 2019, se aprobó la Ley de Gestión Integral de Residuos, estableciendo los fundamentos para la planificación y la política de gestión de residuos a nivel nacional y departamental. Esta normativa busca impulsar una gestión sólida, marcando un salto cualitativo. No obstante, en la actualidad, la disposición final de residuos en el terreno sigue siendo el principal destino para la mayoría de los residuos generados a nivel domiciliario. Lamentablemente, las modalidades predominantes no se limitan a los rellenos sanitarios; persiste un número significativo de vertederos a cielo abierto. La razón principal de los altos índices de disposición final, en lugar de otras alternativas de valorización de residuos, es de índole económica y estructural en el sector.

En este contexto, la corriente de residuos domiciliarios se considera prioritaria, no solo por su aporte relativo al total de residuos generados a nivel nacional, sino también debido a los desafíos identificados para lograr una gestión ambiental y socialmente adecuada. En cuanto a la normativa de residuos a nivel departamental, la situación es muy dispar, destacándose los esfuerzos de departamentos como Canelones al pensar e implementar nuevos planes, políticas y acciones sobre el tema. Estas políticas promueven un cambio de paradigma en la concepción y vínculo con los residuos, hacia una mirada de economía circular, participación y responsabilidad compartida. Los residuos se ven como recursos, se identifica la oportunidad de transformarlos y se apuesta por su revalorización. En este ámbito entendemos coherente proponer programas que trabajen en la valorización de los residuos y la concientización de las acciones humanas.

TERRITORIO DE OPORTUNIDAD

Centrándonos en el Departamento de Canelones, se generan diariamente alrededor de 465 toneladas de residuos, con un aumento del 15 al 20% durante el verano. La gestión de residuos abarca diversas áreas, incluyendo zonas urbanas, rurales, turísticas, industriales y logísticas. La mayoría de los residuos son orgánicos, lo que ofrece oportunidades de valorización a pesar de los desafíos asociados a su rápida descomposición.

El gobierno departamental está implementando un Plan Integral de Gestión de Residuos (2020-2025) con el propósito de modernizar la gestión, fomentar la innovación, educar y concientizar a la población, aspirando a convertir a Canelones en un referente regional en la gestión de residuos. Las acciones se centran en la clasificación en origen y el compostaje domiciliario. Después de este punto es donde se propone actuar: en lugar de llevar los residuos orgánicos no compostables, ya clasificados, al relleno sanitario, se direccionarán a plantas de tratamiento y aprovechamiento de los residuos. Una de estas plantas es el objeto de este proyecto.

CUANTIFICANDO EL PROBLEMA

El 30% de los residuos generados en el ámbito urbano son inorgánicos y recuperables, y diversas iniciativas y empresas se esfuerzan por maximizar su aprovechamiento. El 70% restante comprende materiales aparentemente no recuperables, entre los cuales se encuentran los orgánicos. La gestión y revalorización de estos últimos plantea un desafío significativo, pero al mismo tiempo abre la puerta a la exploración de oportunidades, como la producción de energía, combustibles y otros subproductos. Este proceso se lleva a cabo mediante el uso de tecnologías tanto nuevas como ya existentes en el país, tales como rellenos sanitarios, digestores anaeróbicos de biogás y cogeneradores.

En la Ciudad de la Costa, la zona más poblada y de mayor crecimiento en el departamento de Canelones, el 42% de los residuos generados son orgánicos, equivalente a 1612 toneladas mensuales (19344 toneladas al año). Considerando una densidad de 0,55 ton/m³, esto resulta en un total de 98 metros cúbicos de residuos al día.

CIUDAD DE LA COSTA

Surgió a partir de un conjunto de balnearios, que en 1994, debido principalmente a la rápida consolidación de una masa crítica de población, se tomó la decisión de oficializar su estatus como ciudad. A pesar de esto, la Costa ha mantenido una identidad difusa, careciendo de un centro definido, referencias cívicas claras y enfrentando el desafío de construir una identidad propia.

El territorio actualmente ocupado por la ciudad experimentó un desarrollo y explotación en el siglo XX sin una planificación pública significativa. Los trazados y parcelarios fueron, en gran medida, determinados por la especulación, concebidos originalmente para viviendas aisladas de clase media. La ciudad ha experimentado un crecimiento constante en extensión y consumo de terreno, aumentando su población actualmente a alrededor de 100,000 habitantes. Esto ha venido acompañado con aumentos en la demanda de infraestructuras, espacios y edificios públicos, una conjunción donde el proyecto se plante operar.

GEOGRAFÍA INFRAESTRUCTURAL

La ciudad ha construido, a lo largo de su evolución, una geografía propia, infiltrada por infraestructuras naturales y artificiales que conviven con mayor o menor grado de fricción con la trama.

Estos dispositivos anónimos, en predios cerrados, proporcionan el soporte físico para que la vida discurra y poseen un potencial latente para contruir ciudad y establecer nuevos tipos de relaciones y funciones. El proyecto se integrará en esta geografía, un elemento más, aprovechando dicho potencial para crear nuevos espacios de encuentro, traspasar la noción tradicional de infraestructura y situarse entre lo industrial y el ocio, entre el consumo y la producción.

ALTERNATIVA PARA VALORIZAR LOS RESIDUOS

En este contexto, se propone la construcción de un edificio diseñado para gestionar la fracción de residuos más abundante y a menudo descuidada: los orgánicos a nivel urbano. Para este propósito, se ha seleccionado la tecnología de biodigestores.

Estos sistemas cerrados de tanques utilizan microorganismos para descomponer la materia orgánica, generando biogás y fertilizante orgánico en condiciones anaeróbicas. La principal producción incluye metano y dióxido de carbono, los cuales pueden aprovecharse para la generación de electricidad. Esta tecnología posibilita una gestión eficiente de los residuos orgánicos, promueve la producción de energía renovable y contribuye a la reducción de las emisiones de gases de efecto invernadero. Representa una alternativa beneficiosa tanto desde el punto de vista ambiental como económico en la gestión de residuos.

Infraestructuras Posibles indaga en las potencialidades de las infraestructuras, aceptando la complejidad y los compromisos que la arquitectura deberá asumir. Es un organismo en proceso de gestación que, como tal, acepta y trata de gestionar la condición “imperfecta” de forma productiva.

No se suavizan las lógicas contradictorias que informan y dan consistencia al sistema, se dejan patentes en su armado, de las partes y cicatrices que lo construyen. El edificio se concibe como una pieza dentro de un sistema de infraestructuras para el procesamiento de residuos sólidos a escala territorial, una nueva ecología artificial dentro de las ciudades.

Estos monstruos urbanos buscan establecer nuevas relaciones con la ciudad y sus habitantes, ofreciendo nuevos espacios de encuentro, aprendizaje y ocio, aprovechando flujos y energías propios de estos programas; formando ensambles bizarros, simbiosis programáticas inesperadas, donde el excedente de los procesos industriales se utiliza para alimentar las actividades públicas.

El edificio se implanta en la Ciudad de la Costa, un marco apropiado para este experimento, una ciudad de escala media en pleno desarrollo donde las infraestructuras ya están siendo absorbidas por la trama. Este nuevo dispositivo se integrará sobre una gran arteria, reclamando un lugar en el strip de la ciudad, siendo un nuevo tipo de landmark, con una escala y programación singular; un monstruo térmico, un ser vivo que respira, exhala, come, defeca y suda.

REPENSAR LA INFRAESTRUCTURA

El proyecto busca comprender los componentes de una planta de digestión anaerobia para aprovechar su potencial arquitectónico y técnico. Se mejora la performance de los dispositivos, permitiendo la integración y colaboración de estas infraestructuras con programas más flexibles y sociales, así como con la trama urbana existente.

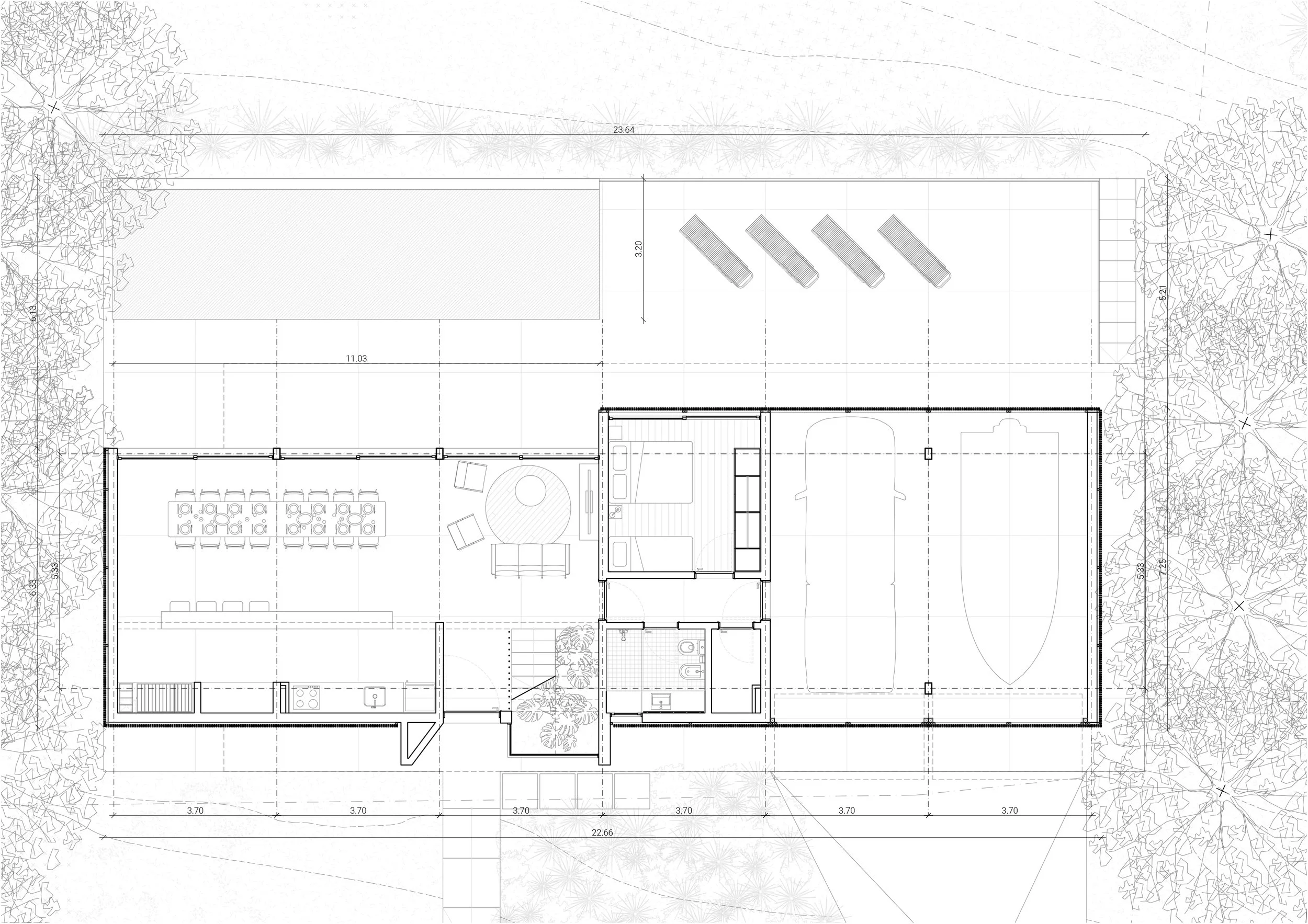
Para alcanzar el objetivo se empaquetan y separaran las áreas que generan olores con el fin de evitar molestias a los vecinos y usuarios. Además, se encapsulan los programas que generan altos niveles de ruido, buscando reducir su impacto sonoro. Por último, se asocian y exhiben los equipos más representativos de la planta, dándoles una función comunicativa y performativa simultáneamente.

Se utiliza como base para el diseño el sistema DRANCO, que consta de digestores verticales altamente eficientes, los cuales permiten una digestión sin agitación, evitando la formación de sedimentos o escoria en el tanque. Incorpora un reciclaje intensivo del digerido en una sola fase y utiliza la digestión en seco con una sequedad óptima del 20-30%. Puede operar tanto a temperaturas termofílicas (48 55°C) como a temperaturas mesofílicas con un mínimo de energía calórica recirculante.

Para el dimensionado de los tanques se realiza un estudio comparativo de diferentes plantas que utlizan este mismo dispositivo. De esta manera se llega a la conclusión de que será necesario una serie de biodigestores que sumen un total de 1500m3 de capacidad para el procesamiento.

Se despliegan dos planos a modo de terrazas sobre la pendiente: uno, horizontal, prolonga la ladera y conecta la casa al suelo; el otro, elevado, se transforma en punto de observación privilegiado hacia el mar. Habitar aquí no significa aislarse de la naturaleza, sino interactuar con ella, dejar que la casa medie entre el cuerpo y el horizonte. La casa no se limita a ocupar la ladera: la resignifica, se convierte en dispositivo de observación, en mirador habitado donde mar, bosque y cielo se unen con la vida cotidiana.

Hacia la calle la casa, se muestra contenida y silenciosa: planos ciegos y filtros densos conforman un frente sobrio, casi hermético, que protege la intimidad y marca distancia con lo público.

Pero hacia la ladera, la condición se invierte. El volumen se abre en grandes superficies vidriadas, terrazas y planos que prolongan la topografía, la casa se convierte en mirador. De este modo, se construye un dispositivo que media entre la intimidad doméstica y la potencia estética del territorio.

La casa se organiza con claridad en dos niveles que separan lo público de lo privado, asegurando una convivencia fluida. En la planta baja, los espacios de servicio, un estar, la barbacoa y un dormitorio de invitados con forman un nivel de acogida vinculado al suelo.

En la planta alta, estar y comedor se unen en un gran espacio común que se abre hacia la terraza, mientras los dormitorios se disponen a ambos lados, equilibrando privacidad y amplitud. La solución es simple y precisa, capaz de multiplicar los modos de habitar y dar lugar a todos.

La intervención se integra a las dinámicas del territorio y se apoya en la vegetación autóctona de la costa uruguaya para intensificar la experiencia del sitio a la vez que se funde con el entorno.

Especies psamófilas y arbustivas conforman filtros hacia los linderos, regulando la privacidad y consolidando el suelo. Los pinos por su parte, suman protección frente al viento, contención del suelo y cobertura vegetal que proporciona sombra.

El conjunto se configura así como un paisaje operativo, capaz de articularse con la topografía y con la vida cotidiana.